34
$1,439,000 Sale
Listed 13 days ago
113 Eighth Avenue
· 3
· 2
· 2
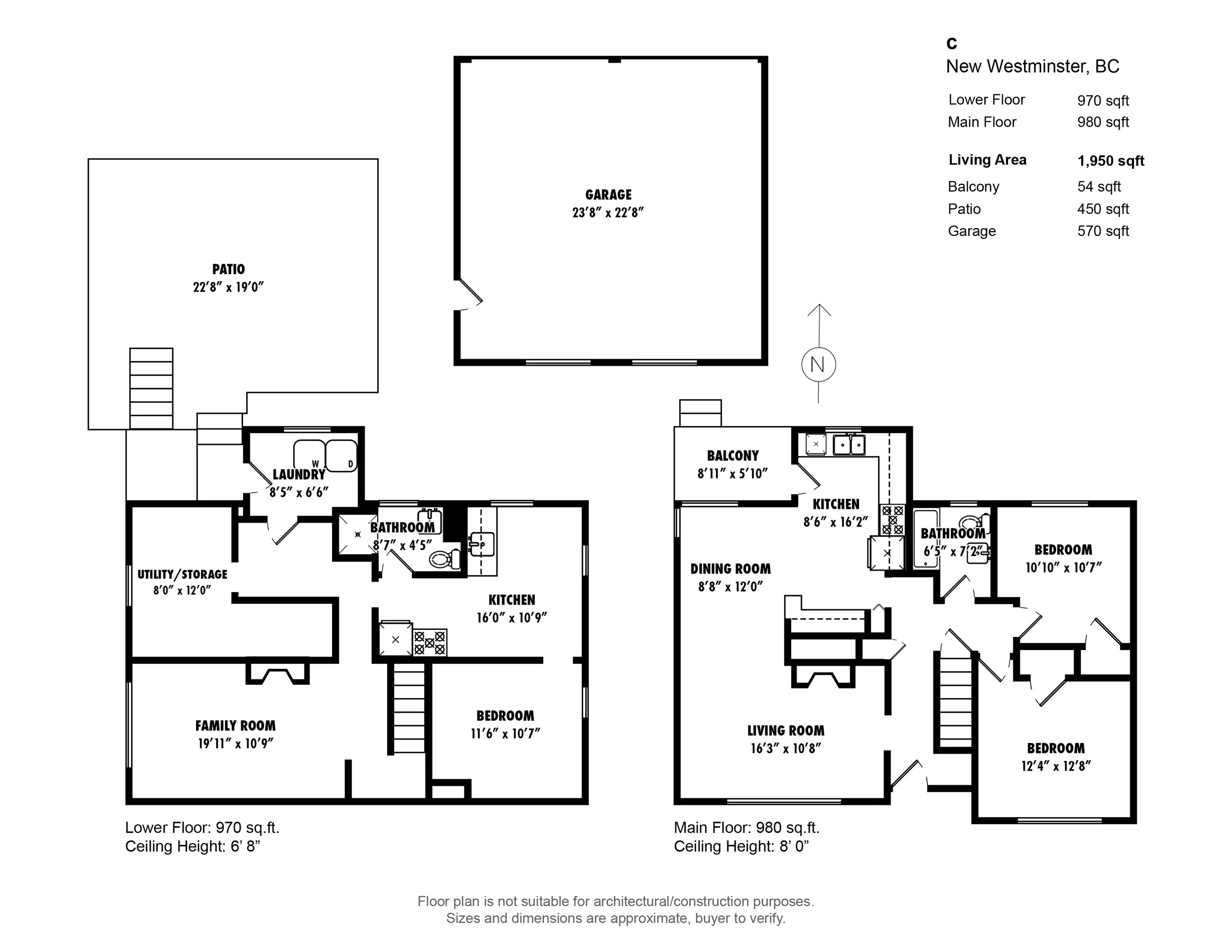
· 1950
Key Facts
Key facts for 113 Eighth Avenue
Property Type
House, Rancher/Bungalow with Basement
Parking
2 garage, 4 parking
MLS #
R3051950
Size
1950 sqft
Basement
Finished
Listed on
-
Lot size
6972.43 sqft
Tax
$6,048.51 /yr
Days on Market
-
Year Built
1950
Maintenance Fee
-
Description
Prime Glenbrooke bungalow on an extra large 53x132 lot w/incredible potential! Perfect for young families or savvy investors seeking development opportunities. This well-maintained home features arched doorways, fir flooring & updated systems incl: 2017 roof, 2022 tankless hot water & 2015 furnace/p...lumbing upgrades. Relax on the stamped concrete patio overlooking lovely established gardens, or envision your future project on this generous lot. Dbl garage w/lane access adds convenience & value. Located in family-friendly Glenbrooke, steps from Terry Hughes Park, rec centres, shopping & vibrant local restaurants & cafes. Whether you're raising a family or holding for future development, this property delivers on all! Open House Saturday, October 11th 2:30-4pm
Similar Properties (No results)
Room Types
Primary Bedroom
-
Dimensions 12'8 x 12'4
156.22 sqft
Living Room
-
Dimensions 10'8 x 16'3
173.33 sqft
Dining Room
-
Dimensions 12'0 x 8'8
104 sqft
Courtesy of: Stilhavn Real Estate Services